Solutions for steel strapping™

Side Seal Strapping Machines

  Side Seal Strapping Machines


Side Seal Strapping -
Side Seal Strapping Machines are widely used in industry to secure cartons, bundles, and unitized loads - quickly, easily, and economically. We offer the flexibility for either automatic or operator controlled strap application and package positioning to fit the individual and the changing requirements of industry. The Side Seal machine is available with a stationary or indexing strapping head and an optional 'pallet void feeder' (PVF) for strapping through the pallet voids. The modular strap track system can be configured to suit any package size and shape.

Bottom Seal Strapping Side Seal Strapping -

Side Seal Strapping

Side Seal Strapping

Specifications:

  • Heavy Duty Structural Steel Tubing
  • Welded and Bolted Construction
  • Heavy Duty Rollers & hardened Steel Tracks
  •   - Indexing Head Carriage
  • Stainless Steel Strap Track System

Machine Options:

  • Fixed or Indexing Strapping Head
  • Pallet Void Feeder (Sword)
  • Lower Thru Track

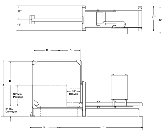
Dimensions:

  • A = 8" + Max. Package Height + Conveyor Height
  • B = 6 1/2" + Max. Package Height
  • C = 16" + 1/2 Max. Package Width
  • D = 11" + 1/2 Max. Package Width
  • E = 21 1/2 + 1/2 Max. Package Width
  • F = 58" + 1 1/2 Max. Package Width

  • Pallet Void Feeder (sword) Stroke = 22" + Max. Package Width
  • Package Limits: 18" Min. Height x 6" Min. Width x 12" Min. Length
  • Strapping head Options: Model SL, Seal-less or Model SC, Seal Type

    • NOTE: All dimensions are approximate and subject to change.